Mortgage calculator

?

?

« Back

5.67 acres, Haywood Lane, Knowle, Solihull, B93, West Midlands
For Sale - Guide Price £3,750,000

  • 5 bedrooms
  • 4 reception rooms
  • 5 bathrooms
  • 5.67 acres
  • Leisure Facilities
  • Outbuildings
  • Detached
  • Garden
  • Rural
  • Stabling

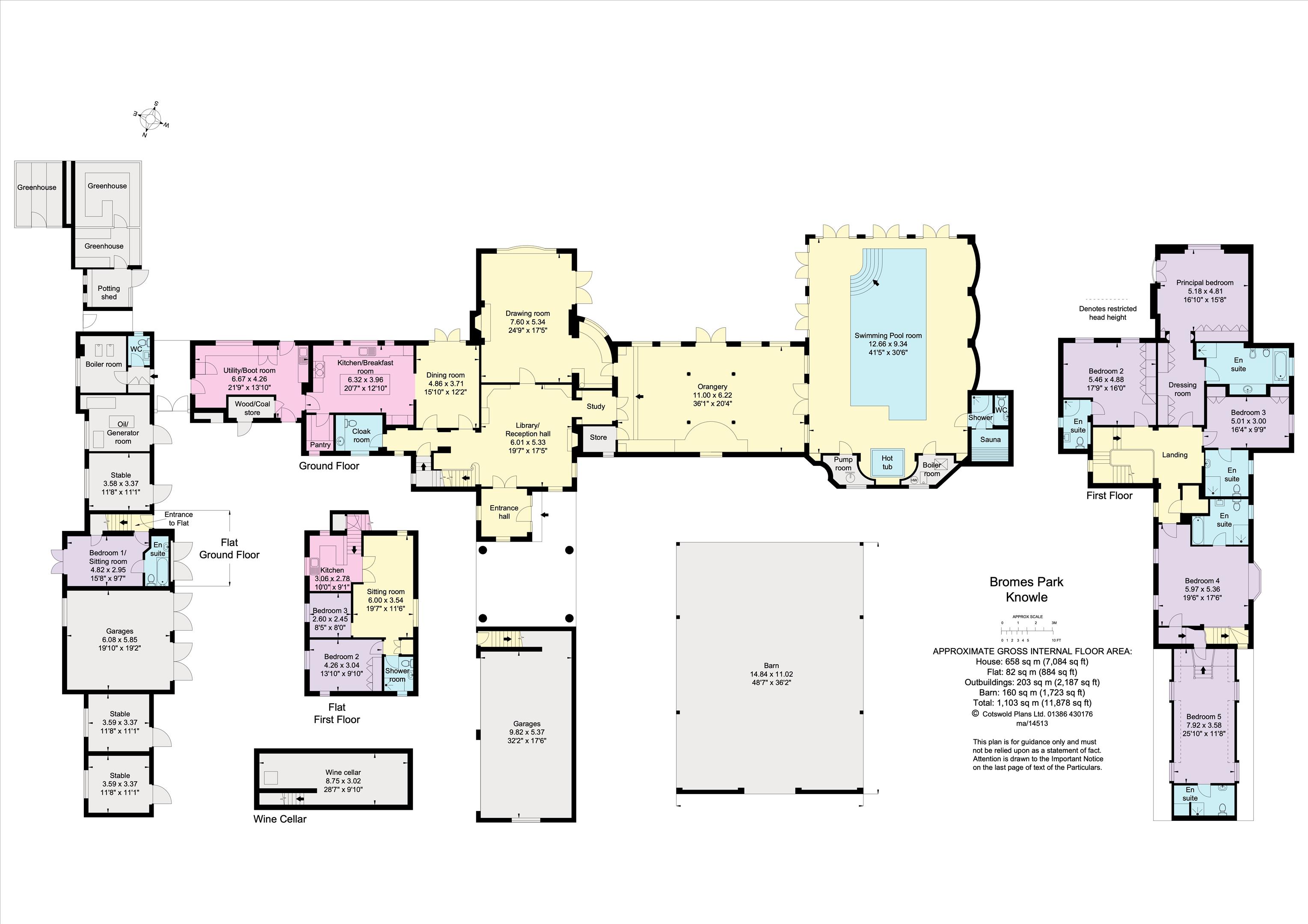
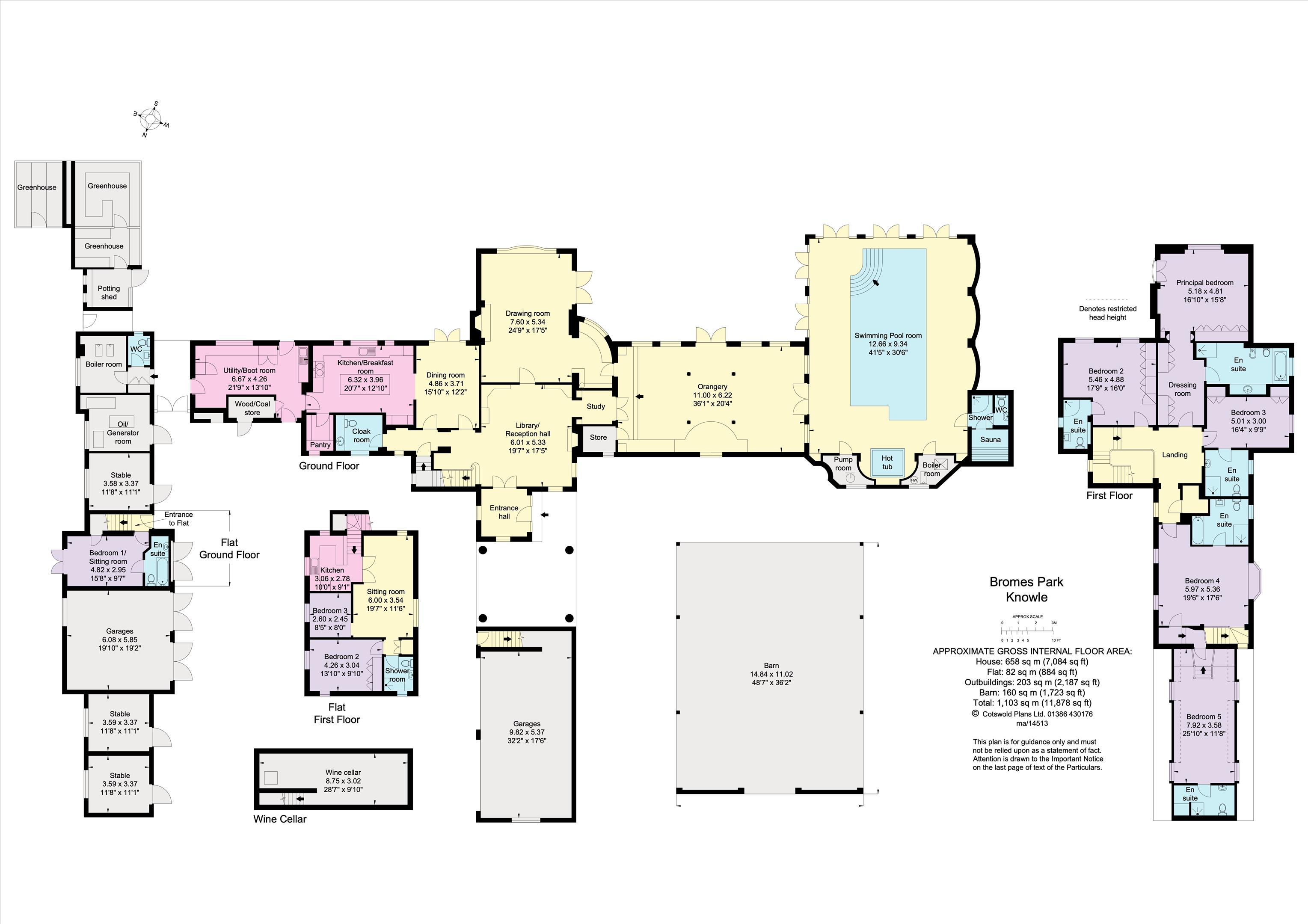
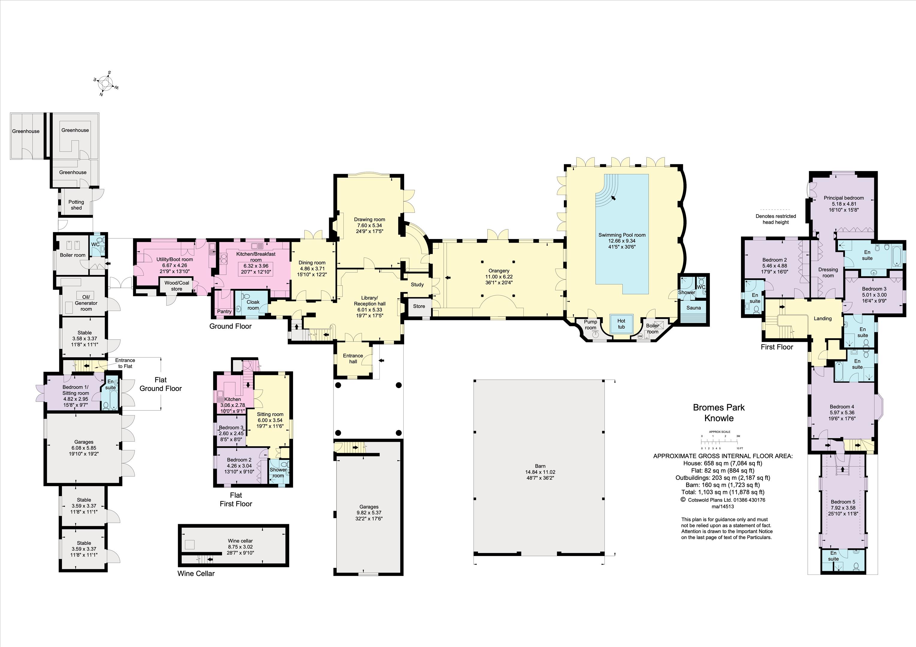
Bromes Park is a most fantastic family home, situated within this wonderful location surrounded by its own land bordering the National Trust property of Baddesley Clinton. Having been thoughtfully designed in the Queen Anne style and constructed in 1970, this home has an abundance of character.

One enters the property via the reception hall with stairs rising to the first floor and doors radiating to the principal reception rooms. There is a substantial dual aspect drawing room with an open fireplace and a delightful dining room which opens to the kitchen/breakfast room and patio. The kitchen/breakfast room has a range of wall and base units beneath a marble worktop with a central island and integrated appliances including an AGA, a well-placed pantry and a sizeable utility.

Also accessed via the reception hall and through the study area is the magnificent orangery with a vaulted ceiling and water garden, a perfect space for those that love to entertain. A door leads from the orangery into the swimming pool complex with a heated swimming pool, hot tub, sauna and shower room. A range of double doors open from the pool room to the patio and gardens.

The first floor comprises a substantial principal bedroom suite with dressing room and an en suite bathroom. There are four further bedrooms all of which are en suite. The views from the first floor are simply beautiful.

The property is approached via a long-curved tree lined driveway leading to the courtyard providing access to the garaging, stables and parking for plenty of cars. Surrounding the courtyard is a range of buildings including garaging for four cars and three stables as well as the boiler room.

There is an apartment accessed via the courtyard which comprises a sitting room/bedroom with bathroom to the ground floor and two bedrooms, a kitchen, lovely sitting room and shower room to the first floor. This would work well for multi-generation living, guests or staff accommodation.

The formal gardens are stunning, they have been carefully nurtured over the last 27 years and have always been admired by many visitors. The partly walled formal garden has a variety of herbaceous beds and a fine array of mature trees, two green houses will certainly be enough to keep a keen gardener busy with a beautiful rose arbour and pathway leading to the Dutch barn and former grass tennis court. Towards the bottom of the garden is a fish pond with a waterfall with a bridge over and a lovely loggia over looking the pond and the grounds.

Lot 2 is available by separate negotiation. Accessed from the garden via a secure gate or alternatively from Haywood Lane is further land which is available by separate negotiation. The further land available totals 25.5 acres and includes woodland, a large pond and grazing land. Please note that there is a footpath over Lot 2.

Situated in a beautiful location close to all of the amenities Lapworth, Dorridge and Knowle have to offer. The property is within easy reach of the intersections with the M40 and M42 giving good access onto the Midlands motorway network and the NEC, Birmingham International Airport and the M40 to Oxford and London beyond. Solihull, Henley-in-Arden, Warwick and Stratford-upon-Avon are all readily accessible and the house is within easy reach of the Cotswolds.

There are an excellent range of state, grammar and private schools nearby including the renowned Solihull boys and girls schools and King Edward the VIII school in Birmingham. Public Schools in Warwick, The Croft Prep School in Stratford-upon-Avon, Stratford Grammar School, Arnold Lodge Prep School and Kingsley School for Girls in Leamington Spa. There are a number of excellent golf courses nearby including Copt Heath Golf Club in Knowle and The Belfry Hotel is 15 miles away.

M42 (J4) 8 miles, M40 (J15) 10 miles, Birmingham Int

Disclaimer

Property Ref.41036_STR012264329. The information about this property is an advertisement displayed on our website by the agent referred to above. This advertisement does not comprise property particulars. AMC does not warrant its accuracy or completeness or the accuracy or completeness of any linked or associated information. Please see website terms of use