Mortgage calculator

?

?

« Back

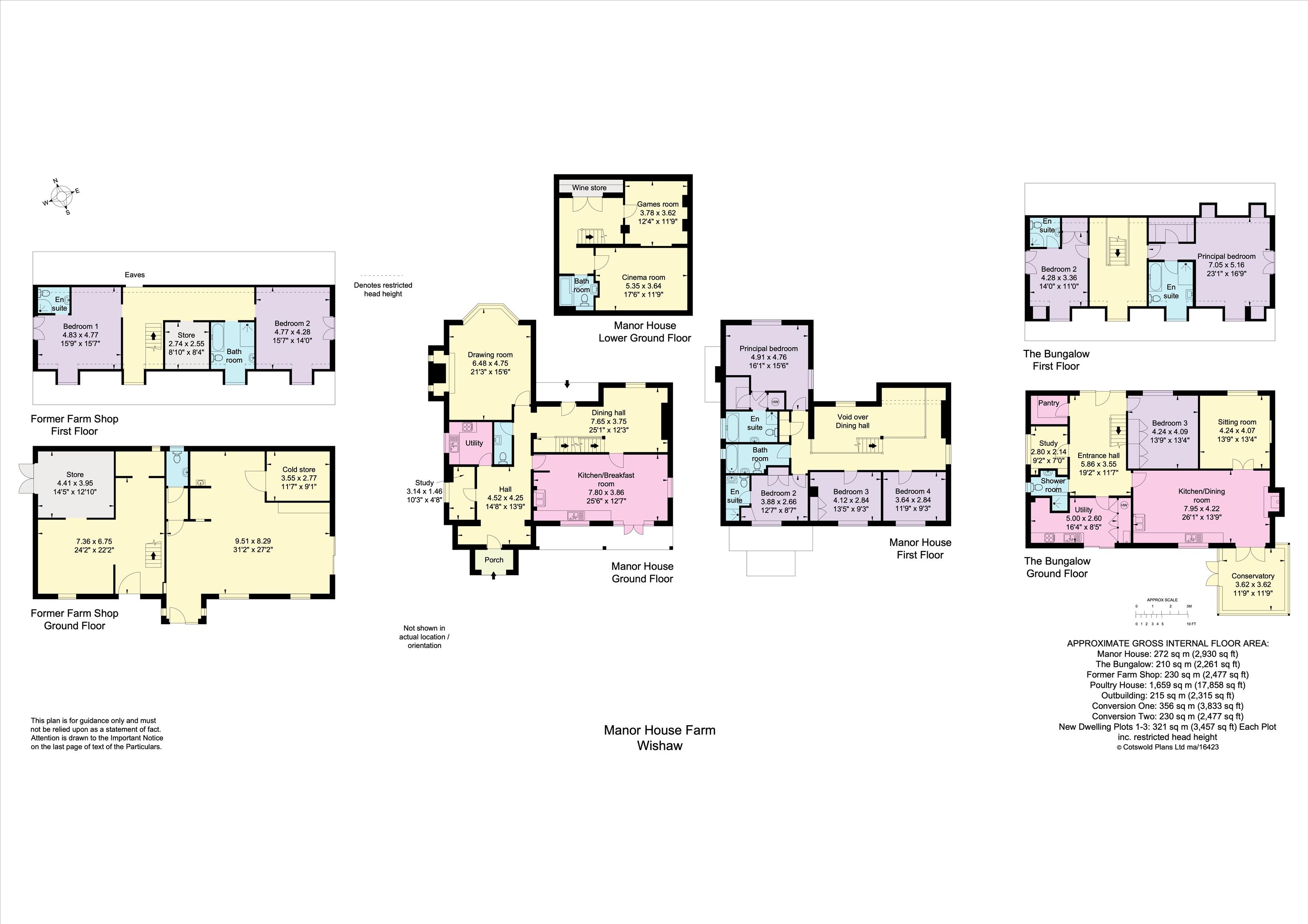
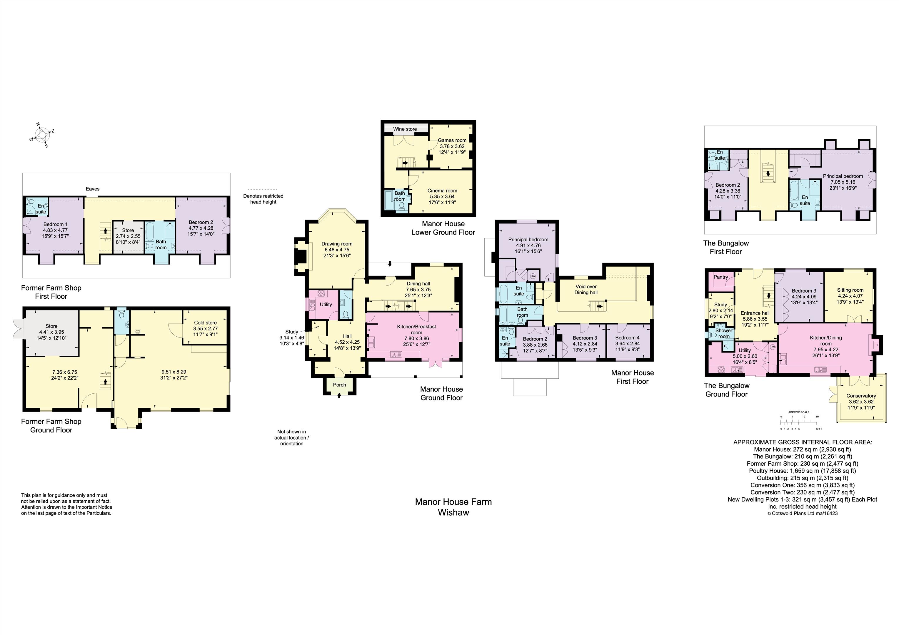
24 acres, Bulls Lane, Wishaw, Sutton Coldfield, B76, Warwickshire
For Sale - Guide Price £3,000,000

  • 4 bedrooms
  • 2 - 3 reception rooms
  • 4 bathrooms
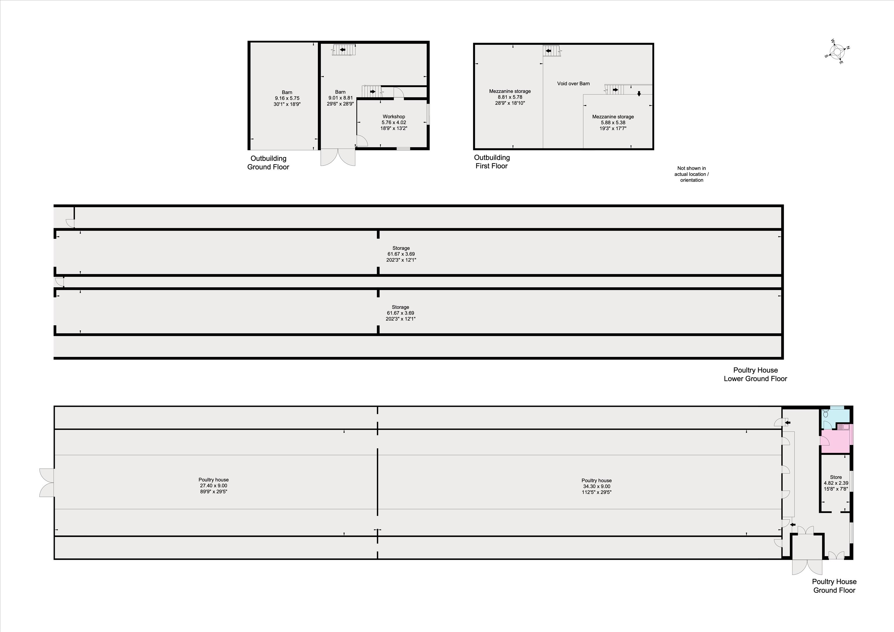
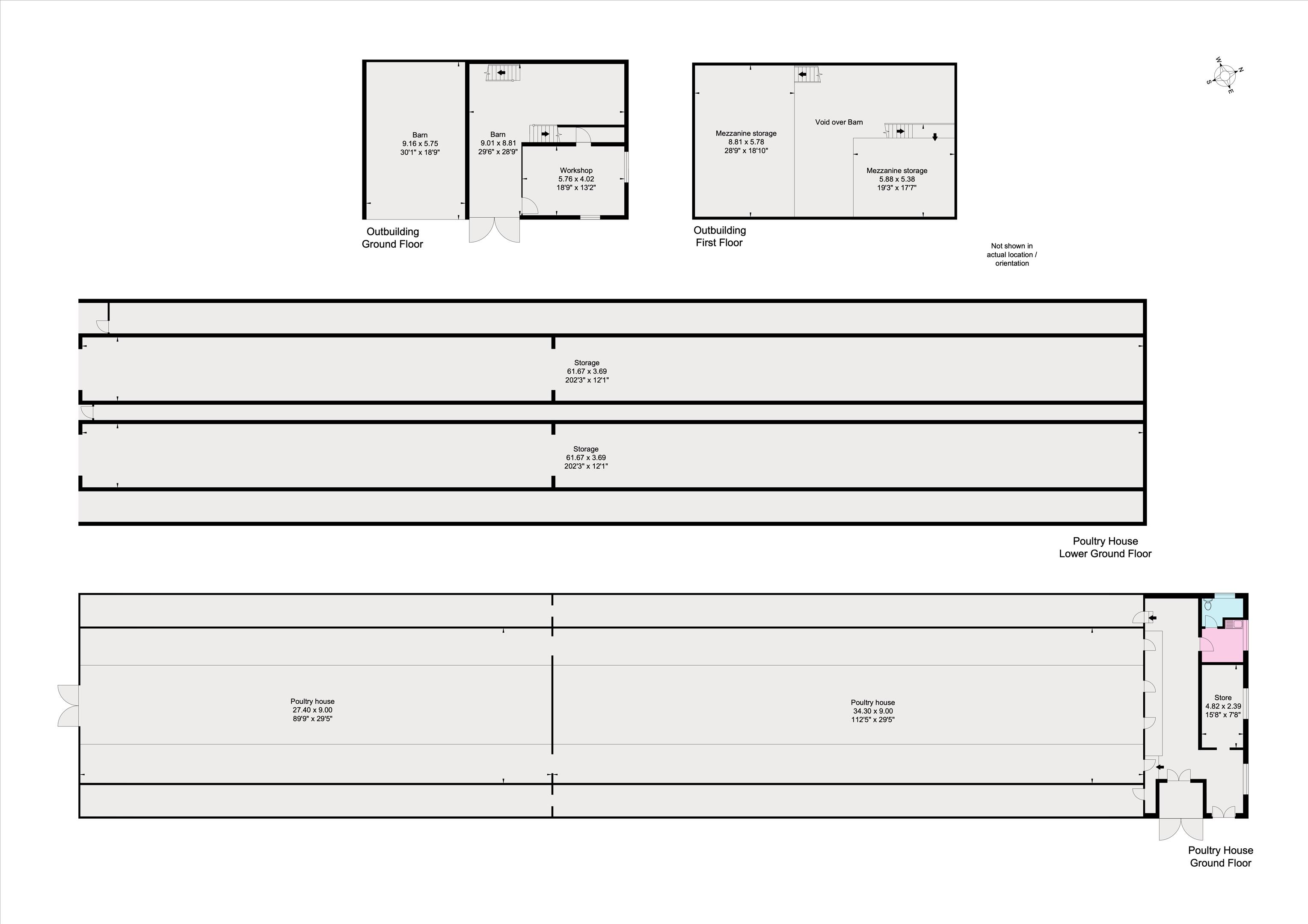
  • 24.00 acres
  • Detached
  • Garden
  • Rural
  • Private Parking

Manor House Farmhouse was built in 1997, in recent years the house has been used as a care home in a lovely setting. The property will benefit from internal refurbishment to create a lovely family home in a large private garden.

The Gatehouse is a detached chalet bungalow, currently occupied by the vendors, with three generous bedrooms, one on the ground floor, with a large kitchen/ dining room with a sitting room off and a south-facing conservatory.

The farm buildings have consent to convert or replace to provide five substantial detached family houses, with attractive gardens.

Accessed off a private drive which will serve the seven dwellings, the site is situated in attractive farmland and paddocks in a ring fence with mature trees and fruit trees.

The land can provide opportunities for buyer with ponies or equestrian interests, wanting to live in a peaceful setting, yet readily accessible to motorways and the West Midlands centres of employment.

There are no public rights of way or footpaths across the land

Wishaw is a small village in north-west Warwickshire, and the home of The Belfry Hotel and Golf Course and spa, which has hosted the Ryder Cup on four occasions. The village has The Cock Inn public house, Wishaw golf club and St Chads parish church. Wishaw is well placed for access to regional centres and the motorway network.

The highly regarded town of Sutton Coldfield, about 3 miles away, provides an excellent choice of shops, restaurants and schooling, including Bishop Vesey's Grammar School, Sutton Coldfield Grammar School for Girls and Highclare School.

There are several train stations close by, including Butlers Lane and Four Oaks providing access to Lichfield Trent Valley, which has a direct train to London Euston in just 1 hour 15 minutes, and to New Street Station in Birmingham. Sutton Park offers great scope for walking, golf and a variety of outdoor pursuits.

Disclaimer

Property Ref.41036_STR012436591. The information about this property is an advertisement displayed on our website by the agent referred to above. This advertisement does not comprise property particulars. AMC does not warrant its accuracy or completeness or the accuracy or completeness of any linked or associated information. Please see website terms of use