Mortgage calculator

?

?

« Back

32.74 acres, Broad Lane, Tanworth-in-Arden, Solihull, Stratford-on-Avon, B94, Warwickshire
For Sale - Guide Price £3,250,000

  • 7 bedrooms
  • 5 reception rooms
  • 4 bathrooms
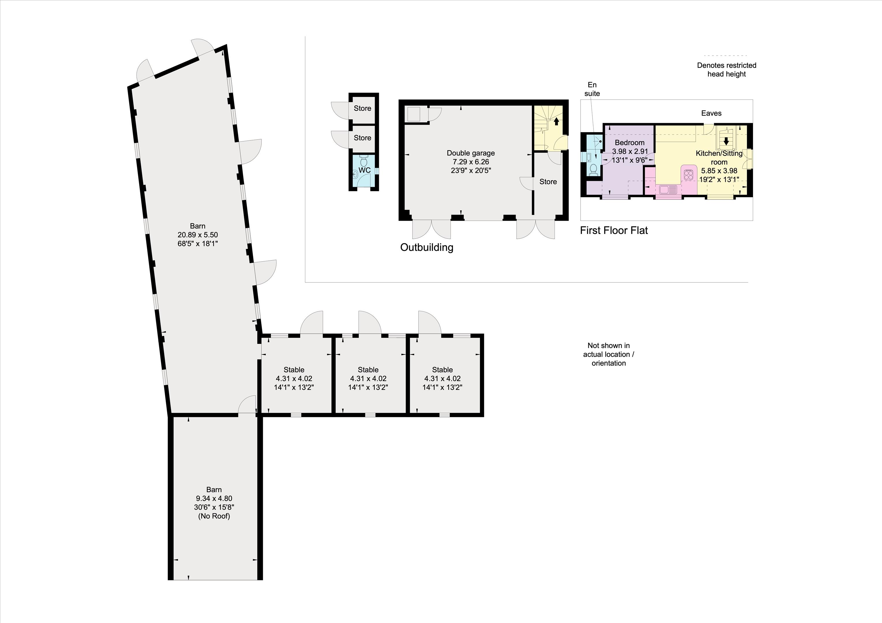
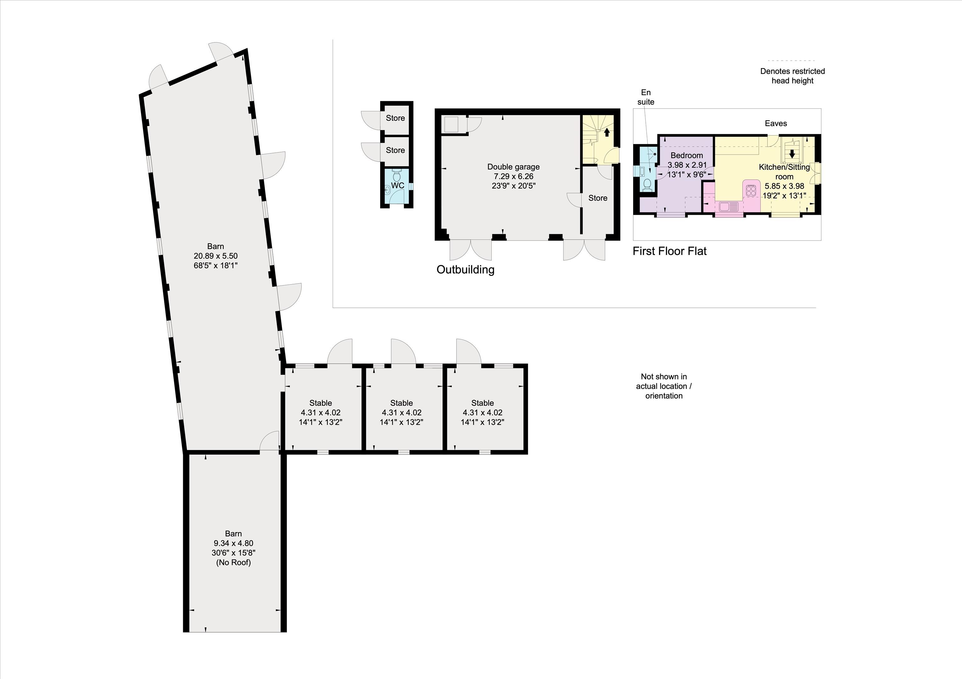
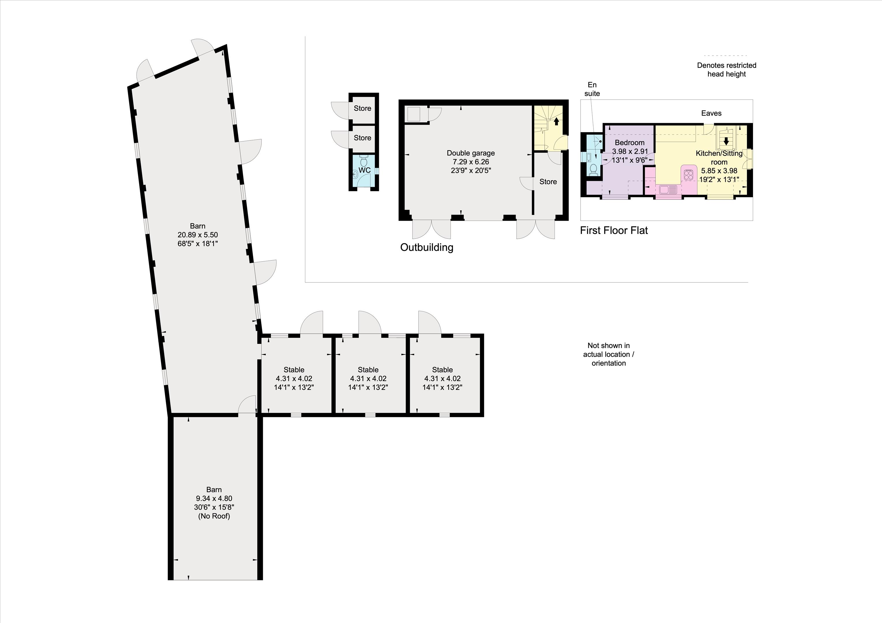
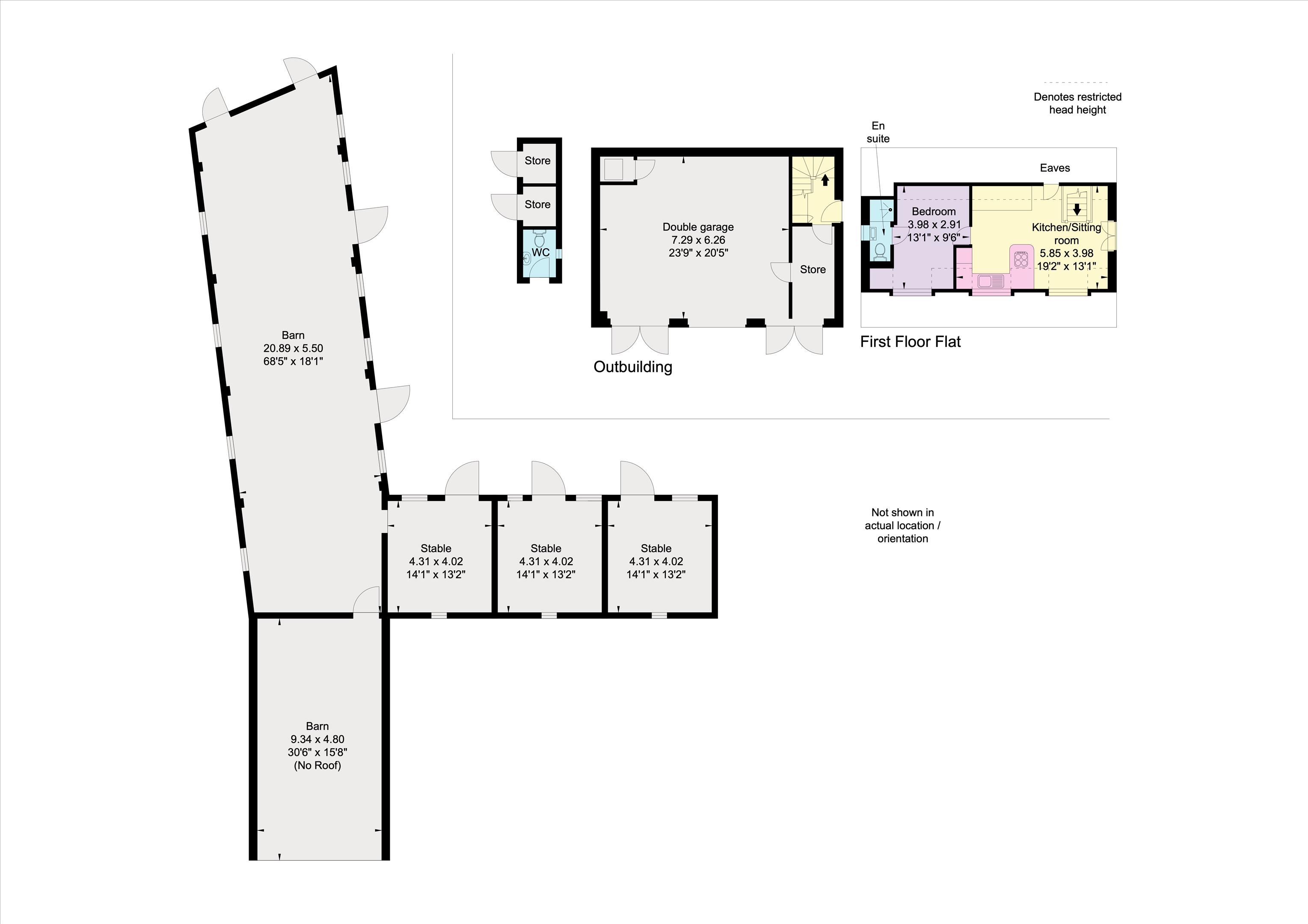
  • 32.74 acres
  • Outbuildings
  • Period
  • Detached
  • Garden
  • Rural
  • Stabling

Beaumont Hill Farm is a superb Grade II listed family home with a wealth of character within, from exposed timber beams to original fireplaces. One enters the property via the reception hall with stairs rising to the first floor and doors radiating to the principal reception rooms. The principal reception rooms include a drawing room with excellent inglenook fireplace, a sitting room and a delightful home office/study with bay window to the front elevation.

The ground floor is complimented further via the kitchen breakfast room with pantry that then leads through to the stunning dining/family/garden room with bifold doors opening out to the rear gardens whilst also offering excellent views of the grounds beyond. A boot room, second kitchen/utility and cloakroom complete the ground floor accommodation.

The first floor benefits from having five double bedrooms, three en suite bathrooms and a laundry room.

The second floor houses the principal suite with nursery room/bedroom seven, a well-appointed dressing room and enviable en suite bathroom.

It is clear to see Beaumont Hill Farm offers an excellent range of well-appointed accommodation throughout, perfect for a family.

Gardens and grounds
Outside, Beaumont Hill Farm truly enters 'a league of its own' having a lovely, gated driveway which leads down to the main house and a drive allowing parking for plenty of cars with a turning circle area and giving access to the garaging.

To the rear of Beaumont Hill Farm are the delightful formal gardens which offer wonderful views over paddock land and the large lake which is surrounded by mature trees. Totalling 32.74 acres, it is clear the property lends itself well to the equestrian purchaser.

Beaumont Hill Farm has an excellent range of outbuildings offering plenty of scope and potential (subject to planning). The traditional outbuildings comprise a Threshing Barn and several stables. Further to the traditional outbuildings there is a modern steel frame warehouse with internal office and kitchenette. Various outbuildings/barns have been subject to multiple planning applications associated with redevelopment to residential dwellings. Whilst planning permission was granted and subsequently extended, this planning application has now lapsed.

All information relating to the various planning applications at Beaumont Hill Farm can be found on the below link:
https://apps.stratford.gov.uk/eplanning/PropDetail.aspx?ref=006KPNPMDT000
Please also note that the Modern Warehouse can only be used solely for agricultural purposes and farm office. There shall be no other use of storage other than with express consent of the Local Planning Authority. This is referenced within Planning Application 18/02035/FUL.

Henley-in-Arden 4 miles, Hockley Heath 4 miles, Solihull 8 miles, Birmingham City centre 12.5 miles, M42 (J3) 2 miles, M40 (J16) 5 miles, Birmingham International Airport and Railway Station 15 miles (InterCity trains to London Euston from 70 minutes), Stratford-upon-Avon 19 miles, Warwick 12 miles, Warwick Parkway Station (Intercity trains to London Marylebone from 69 minutes)

Disclaimer

Property Ref.41036_STR012434003. The information about this property is an advertisement displayed on our website by the agent referred to above. This advertisement does not comprise property particulars. AMC does not warrant its accuracy or completeness or the accuracy or completeness of any linked or associated information. Please see website terms of use