Mortgage calculator

?

?

« Back

10.48 acres, Beaconsfield, Lapworth Street, Lowsonford, Henley-in-Arden, B95, Warwickshire
For Sale - Guide Price £1,999,900

  • 4 bedrooms
  • 4 reception rooms
  • 2 bathrooms
  • 10.48 acres
  • Modern
  • Outbuildings
  • Detached
  • Garden
  • Rural
  • Stabling

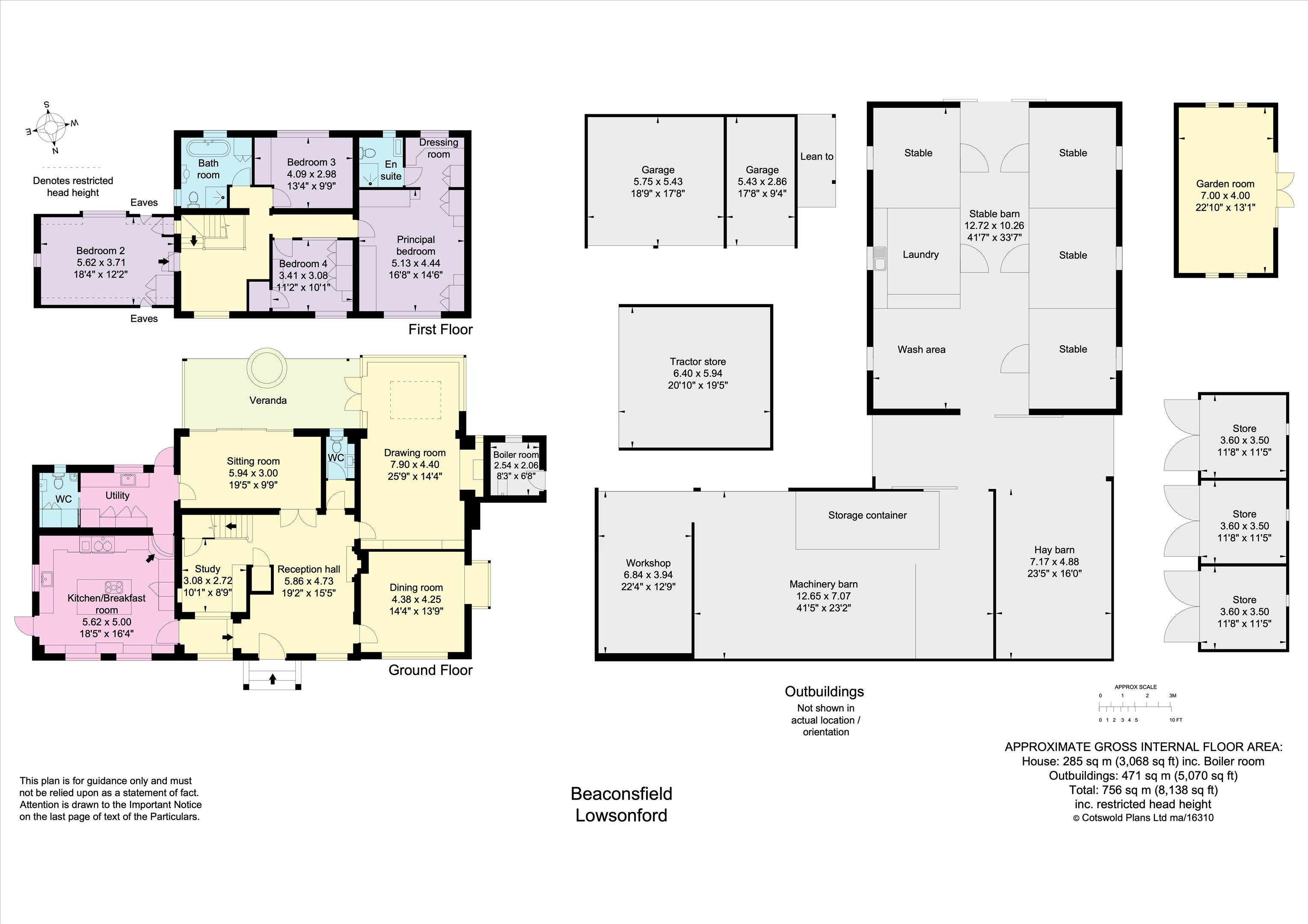
Located in the popular village of Lowsonford, Beaconsfield is a spacious and well-designed family home set within 10.48 acres, complete with equestrian facilities and far-reaching countryside views.

The property offers a practical layout ideal for family life and entertaining. A welcoming entrance hall leads to a formal drawing room and dining room, alongside a more informal sitting room with sliding doors opening onto a veranda - the perfect spot to enjoy the views. The bespoke luxury kitchen fitted 18 months ago by Christopher Peters includes modern fixtures, ample storage, and space for dining. Additional ground floor features include a study, Christopher Peters utility room, and multiple cloakrooms for added convenience.

Upstairs, the principal bedroom includes a dressing area and an en suite shower room. There are three further double bedrooms and a family bathroom with a bath and separate shower, all well-proportioned and thoughtfully laid out.

The exterior of Beaconsfield is a standout feature, offering beautifully landscaped formal gardens with far-reaching views across the surrounding countryside. Designed for both relaxation and entertaining, the gardens include a covered patio area ideal for outdoor dining, a large summer house, and a teepee-style pergola that provide unique spaces to enjoy year-round. The expansive lawn is bordered by mature shrub beds and herbaceous borders, offering seasonal interest and colour.

Beyond the formal gardens, the property extends to approximately 10.48 acres, thoughtfully divided into several paddocks, making it well-suited to equestrian use. The grounds are equipped with a full range of facilities, including six indoor stables with hot water showers and auto-filling water troughs, three loose boxes, a menage, an oak-framed triple garage, a large machinery barn, and a tractor store.

Together, these features complement the house perfectly, offering a rare combination of stylish family living, excellent outdoor amenities, and a highly accessible countryside location. Beaconsfield is a property that delivers on every level for those seeking space, lifestyle, and practicality.

Solar panels are fitted, reducing reliance on the energy grid.

Further land is available by separate negotiation. Please note that some agricultural equipment and the hot tub could be available by separate negotiation.

Set within the heart of the picturesque village of Lowsonford, Beaconsfield offers an idyllic countryside lifestyle just a short stroll from the popular Fleur De Lys pub. This sought-after village boasts superb transport links, with the M40 (Junction 16) just 2 miles away and Junction 15 within 6 miles, making it an ideal location for commuters or those seeking quick access to the Midlands' major road network. Day-to-day amenities can be found in the nearby market town of Henley-in-Arden, while more extensive shopping, dining, and leisure options await in Leamington Spa, Stratford-upon-Avon, and Solihull.

Families are well-catered for with a fantastic choice of schools, including The Croft Prep School, Warwick's prestigious grammar and public schools, King's High School for Girls, and Solihull School, to name a few.

Outdoor pursuits are plentiful too, with racecourses in Stratford and Warwick, plus a variety of nearby golf courses to enjoy at your leisure.

Henley-in-Arden 4 miles, S

Disclaimer

Property Ref.41036_STR012534254. The information about this property is an advertisement displayed on our website by the agent referred to above. This advertisement does not comprise property particulars. AMC does not warrant its accuracy or completeness or the accuracy or completeness of any linked or associated information. Please see website terms of use