Mortgage calculator

?

?

« Back

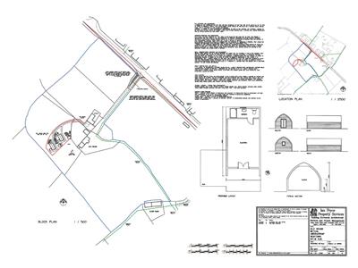
4.4 acres, Old House , Newtown, Mid Wales, SY16 3JE
For Sale - Offers in the region of £550,000

  • Characterful three-bedroom country cottage
  • Beautifully renovated using quality traditional ma
  • South-facing rural location with open farmland vie
  • Set within approximately 4.4 acres with a separate
  • Planning consent for two holiday pods with parking
  • Viewing highly recommended

Equestrian Property A beautifully renovated three-bedroom stone cottage finished to a high standard using quality traditional materials. The south-facing home offers a spacious open-plan kitchen and dining area with stone flooring and inglenook fireplace, plus a separate lounge with wood burner. French doors and picture windows enjoy open rural views. Upstairs are three bedrooms and a stylish four-piece bathroom. Set in approximately 4.4 acres (with separate 6.78 acres of grazing land available), the property includes three stables, a tack room and concrete yard. Planning consent is in place for two holiday pods with parking (Ref: 25/0648/FUL), with infrastructure and services installed and groundworks running to the pods completed ready to build.

Disclaimer

Property Ref.34485888. The information about this property is an advertisement displayed on our website by the agent referred to above. This advertisement does not comprise property particulars. AMC does not warrant its accuracy or completeness or the accuracy or completeness of any linked or associated information. Please see website terms of use