Mortgage calculator

?

?

« Back

8.19 acres, Egg Pie Lane, Hildenborough, Tonbridge, TN11., Kent
Sold (STC) - Guide Price £2,600,000


  • 6 - 7 bedrooms
  • 4 reception rooms
  • 5 - 6 bathrooms
  • 8.19 acres
  • Leisure Facilities
  • Modern
  • Outbuildings
  • Detached
  • Equestrian
  • Fishing

Surrounded by the Kent countryside yet within 1.2 miles of a mainline train station to London Bridge, this architecturally designed modern family home (built in 2009) provides an excellent mix of living and entertaining space set coupled with approximately 9 acres of paddocks and grounds with stables, annexe living and outbuildings.

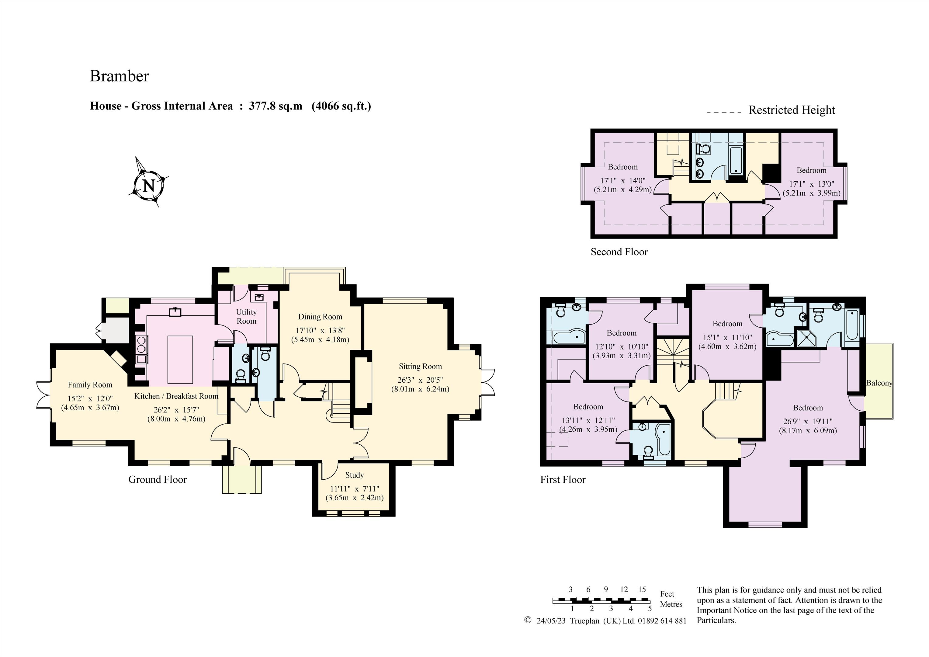
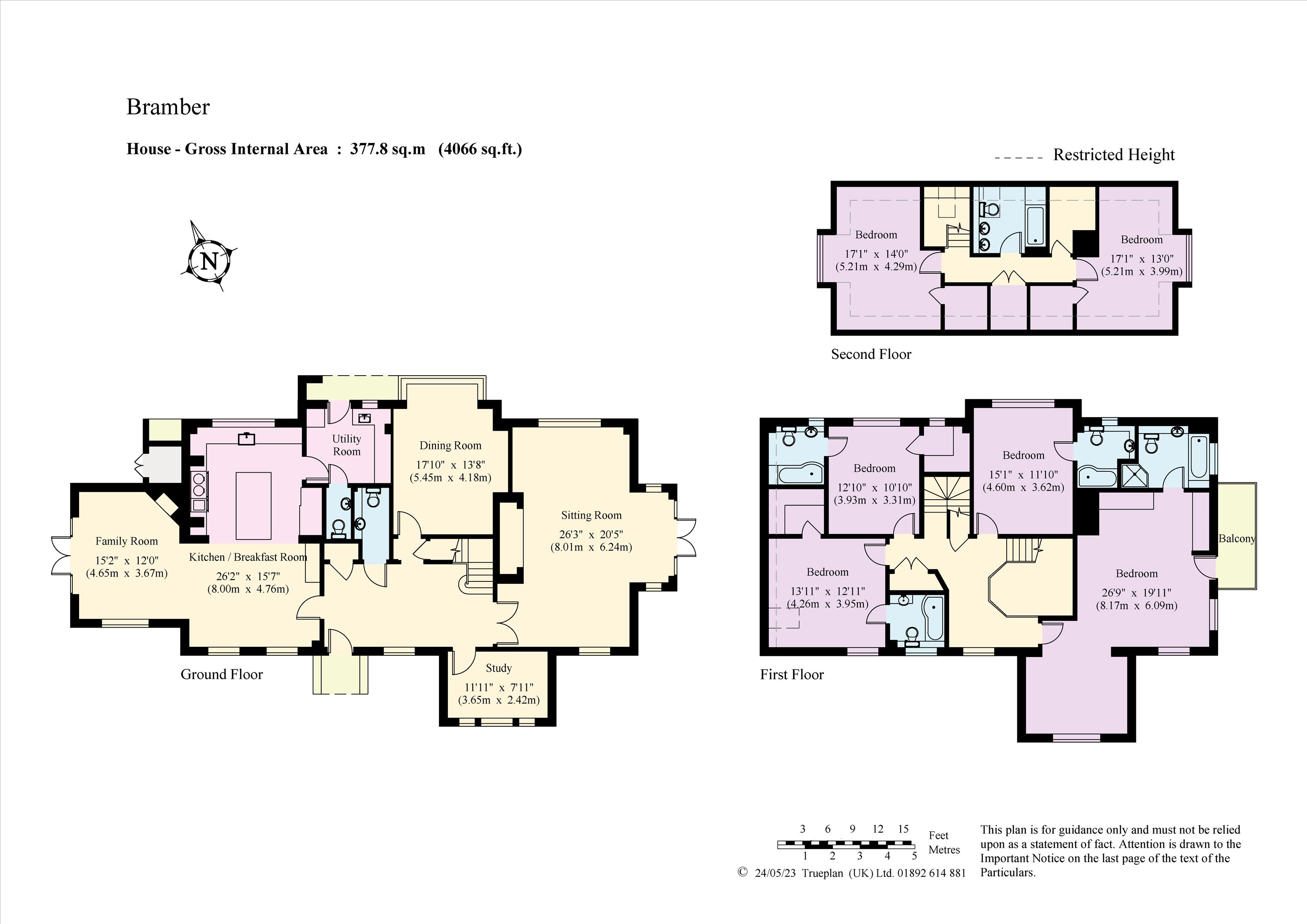
Built in the original grounds of an earlier property, Bramber was specifically designed by the current owners for flexible family living in a brick/hung tile period design. The ground floor is centred around a large, light and bright kitchen/dining/living room with a large central island, stone-tiled floor, extensive units with AGA and a separate living/tv area with a wood burner for winter and doors leading outside for summer. For ease of use, a utility room then connects the kitchen with the outside at the rear of the building. A large entrance hallway links the kitchen with a wood-panelled dining room, guest WC, ample storage, purpose-built office and wonderful tri-aspect south-facing living room with wooden floors and a large stone inglenook fireplace with wood burner; warm and cosy in the winter yet, with its double doors opening out towards the swimming pool, a fantastic entertaining space in the summer.

A large winding staircase leads from the entrance hallway to a large first-floor land which then links to the first-floor bedrooms; a double aspect master suite at the southern end with en suite bathroom, ample built-in wardrobes, a set-aside seating area (initially designed as a separate bedroom but incorporated into the master suite) and a balcony facing out over the swimming pool area. Accompanying the master suite on the first floor are three additional bedrooms, all with en suite facilities and walk-in wardrobes. A further flight of stairs then leads to the top floor, where two large bedrooms (both with ample storage) share a bathroom.

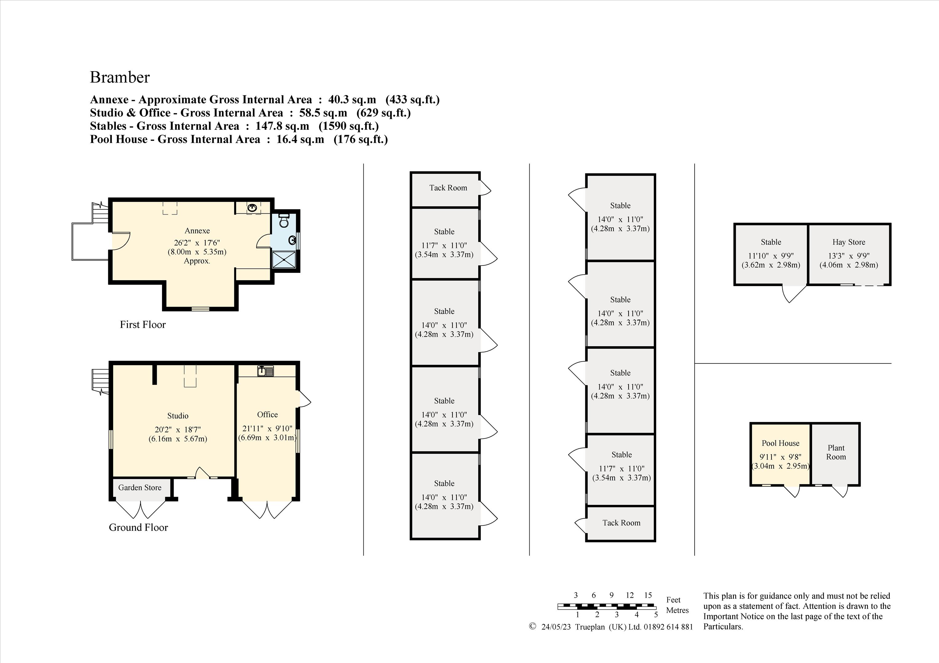
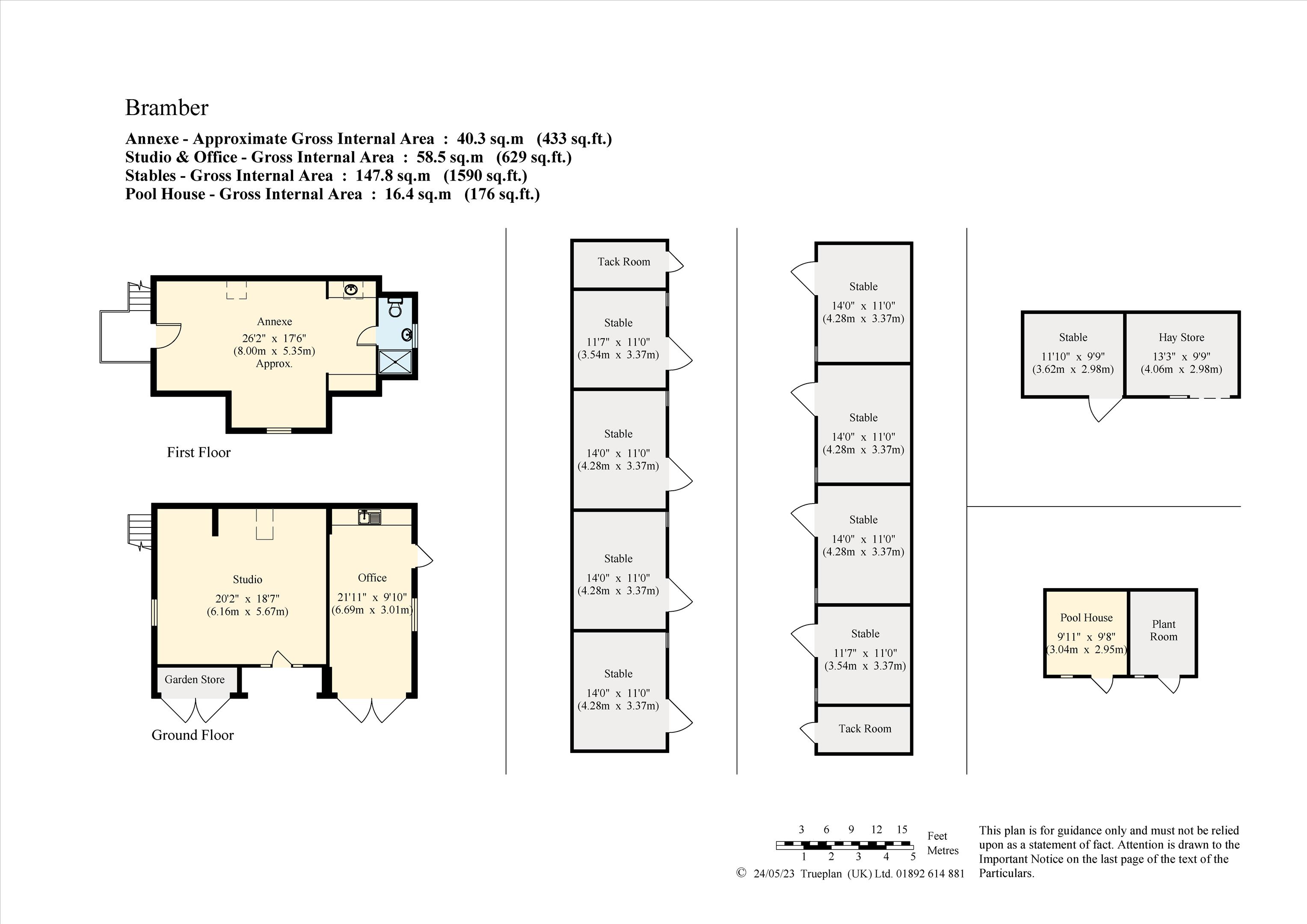
Outside, the house is accompanied by an annexe building currently set as a one bedroom apartment over a home office/studio and store room. Two runs of stables then sit at the front of the property and would either work perfectly as a continuation of use or for potential (subject to the normal approvals) development. Two ponds accompany the property, one of which is well stocked with fish, along with a glorious section of woodland including a line of mature oak trees at the rear of the garden acting as an excellent backdrop to the park like setting with its rhododendrons and mature shrubs and flowers.

On the house's southern side is a swimming pool (with an accompanying pool house, perfect for updating) and a terrace leading out from the living room, perfect for entertaining and catching the sun throughout the day. A further garden area then runs around the rear of the property alongside a well-stocked pond and approximately 9 acres of paddocks, including a well-looked-after manege.

The house is located on a country road just outside Sevenoaks and Tonbridge and combines privacy with exceptional accessibility. The station at Hildenborough is only 1.2 miles away (with trains to London Bridge, Charing Cross and Canon Street), whilst the mainline station at Sevenoaks is located just to the north. The area has excellent road links from the M25, A25 and A21, which provide easy access to London, the Channel Tunnel, the south coast and the international airports of Heathrow and Gatwick together with the wider UK motorway network.

The area also benefits from a wide variety of excellent schools (both primary and senior), including Tonbridge, Sevenoaks School, The New Beacon, the Schools at Sommerhill, Walthamstow Hall School for girls, The Judd School, Skinners, Tunbridge Wells School for Girls and Tunbridge Wells Grammar school for boys.

Disclaimer

Property Ref.56411_SEV012345503. The information about this property is an advertisement displayed on our website by the agent referred to above. This advertisement does not comprise property particulars. AMC does not warrant its accuracy or completeness or the accuracy or completeness of any linked or associated information. Please see website terms of use