Mortgage calculator

?

?

« Back

53 acres, Development Opportunity, Thurlby, Lincoln, LN6 9QF, Lincolnshire
For Sale - £3,250,000


  • Stunning development opportunity
  • 53 Acres of Land
  • 130 Acres of Lakes
  • Full Active Planning
  • 53 Mobile Holiday Homes
  • 48 Holiday Lodges

Detailed Description

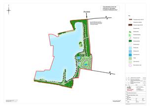
A stunning development opportunity which consists of circa 53 acres of land surrounded by a 130 acre lake. Full planning permission has been granted to provide high quality holiday accommodation in the form of 53 Mobile Holiday Homes and 48 Holiday Lodges which benefit from a 12 month consent together with a reception/managers unit. This planning was made live and confirmed by North Kesteven District Council. Certain areas around the perimeter of the lake have received stone and gravel from the lake in order to provide all weather surfaced tracks whilst a 63 mm mains water supply is available on site and a 500 KVa 3 phase electrical supply is in place. The property enjoys excellent access from the A1 and A46 yet provides an extremely tranquil and unusually secluded natural environment with delightful vistas that can only be truly appreciated from viewing the site.

Location

Thurlby Lake is located just off the A46 which runs from the A1 near Newark on Trent to the City of Lincoln and then on to the East Coast. The nearby village of Witham St Hughes has good local amenities, including a public house, takeaways, primary school and a small supermarket. A wider range of facilities are found in the Cathedral City of Lincoln to the north west and market town of Newark on Trent to the West. The location provides an ideal base for exploring the area including the historic City of Lincoln which boasts a magnificent Cathedral, Castle and Bailgate area as well as thriving City Centre. Further afield the Lincolnshire Wolds which are classed as an area of outstanding natural beauty (AONB) and offers some beautiful places to walk and explore along side the ever popular Lincolnshire Coast to the east.

Viewing

Strictly by appointment with the agents 01522 504304

Other

POPULATION Estimates identify circa 18m people reside within 75 miles of the property. PLANNING Full planning permission was granted by North Kesteven District Council (ref: 13/0956/FUL) on 16th May 2014 for: Change of use of land for the sighting of 53 no. mobile holiday homes, 48 no. lodges and 1 no. Reception lodge. Existing lake to be used for non motorised water sports at land Off Moor Lane, Thurlby, Lincoln LN6 9QF. The Local Planning Authority have confirmed that the planning consent has been implemented and a copy of that letter is available from the selling agents. FURTHER DEVELOPMENT POTENTIAL The vendors have assembled the site over a period of time The approved scheme covers land that they initially acquired to the east of the lake however, considerable further development potential is considered to exist both on this land and the remaining land areas These remaining areas of land and lake extending to approaching 90 acres in total are subject to a 50 % clawback provision expiring in January 2041 Further details together with copies of a Section 106 agreement are available on request. BUYER IDENTITY CHECK Please note that prior to acceptance of any offer, Brown&CoJHWalter are required to verify the identity of the buyer to comply with the requirements of the Money Laundering, Terrorist Financing and Transfer of Funds (Information on the Payer) Regulations 2017. Further, when a property is for sale by tender, an ID check must be carried out before a tender can be submitted. Tenure & Possession Freehold and for sale by private treaty. Agent James Mulhall 01522 504304 lincolncitycentre@brown-co.com

Disclaimer

Property Ref.189272_449343. The information about this property is an advertisement displayed on our website by the agent referred to above. This advertisement does not comprise property particulars. AMC does not warrant its accuracy or completeness or the accuracy or completeness of any linked or associated information. Please see website terms of use